AUSBAUHAUS LICHTENBERG - Individuell gestalten und kostengünstig wohnen
Auszeichnung Award Deutscher Wohnungsbau 2019, Kategorie Neubau / German Design Award 2019 / Preisträger AIT-Architekten-Award 2018, Kategorie "Wohnmodelle der Zukunft" / Nominiert Shortlist DAM Preis 2019 / Nominiert Heinze Architekten-Award 2019
AUSBAUHAUS LICHTENBERG
PROJEKTDATEN
Programm: Mehrfamilienhaus & Gewerbe
Ort: Spittastraße 45, 10317 Berlin-Lichtenberg
Größe: 5.700 m²
Wohneinheiten: 37
Leistungen: LP 1 – 8
Bauherren: Baugruppe AH Lichtenberg GbR
Konstruktion: Stahlbeton-Gerüst, Betonfertigteile und -halbfertigteile, Selbstausbau
Nachhaltigkeit: KfW 40, eigenes Blockheizkraftwerk
Projektteam: Karoline Hietzschold, Bernd Jäger, Jan Kertscher, Matthias Müller, Lucia Nogaledo Tous, Jorge Andujar Rodriguez
Projektpartner: Müller Rose Projektsteuerun, Steffen Janitz Ingenieure, Projekt Bau Kluge UG, Ingenieurbüro Lüttgens
* AUSZEICHNUNG BEIM AWARD DEUTSCHER WOHNUNGSBAU 2019, KATEGORIE NEUBAU
* PREISTRÄGER GERMAN DESIGN AWARD 2019, KATEGORIE "ARCHITECTURE - EXCELLENT COMMUNICATIONS DESIGN"
* PREISTRÄGER AIT-ARCHITEKTEN-AWARD 2018 IN DER KATEGORIE "WOHNMODELLE DER ZUKUNFT"
* NOMINIERT FÜR DIE SHORTLIST DES DAM PREISES 2019
* NOMINIERT FÜR DEN HEINZE ARCHITEKTEN-AWARD 2019
PROJEKTBESCHREIBUNG
Das Mehrfamilienhaus mit 37 Wohnungen und 2 Gewerbeeinheiten wurde durch eine Baugruppe zum Selbstkostenpreis errichtet. Das Gebäudeensemble ist typologisch vielfältig. Es umfasst 33 Geschosswohnungen mit 70 bis 115qm sowie 4 gestapelte Maisonetts mit je 160qm. Das Ausbauhaus bietet eine Grundstruktur, die für Veränderungen und für eine aktive Inbesitznahme offen bleibt. Der Selbstausbau als Form der individuellen Aneignung, der Bildung von Gemeinschaften und Nachbarschaften wird zur Voraussetzung für kostengünstigen und individuell gestalteten Wohnraum.
Lage
Das Ausbauhaus Lichtenberg steht im ehemaligen Sanierungsgebiet Kaskelkiez am Berliner Bahnhof Ostkreuz. Das Haus schließt die Baulücken eines gründerzeitlichen städtischen Blockes auf drei Seiten. Der großzügige gemeinschaftliche Innenhof wird von der Baugruppe und dem benachbarten Sozialträger „Alte Schmiede“ als Aufenthalts- und Spielplatz sowie zum Abstellen von Fahrrädern genutzt.
Konzept Ausbauhaus
Das „Ausbauhaus“-Konzept macht es möglich, räumlich großzügige Wohnverhältnisse zu Preisen des sozialen Wohnungsbaus anzubieten (KG 300/400 ab 1.250 € /qm abhängig vom Ausbaustandard). Die Besonderheit besteht darin, den Bewohnern die Wahl zwischen verschiedenen Ausbaustandards wie „Standard Loft“, der „Standard Wohnung“ und die „Übernahme Rohbau zum Selbstausbau“ zu ermöglichen. So kann Eigentum – je nach handwerklichen und finanziellen Fähigkeiten – günstig entstehen und individuell gestaltet werden.
Das Regal
Die Gebäudestruktur wurde im Rohbau als robustes „Regal“ konzipiert und zum großen Teil in Vorfertigung errichtet (Spannbetondecken und Wände als Betonhalbfertigteile). So sind stützenfreie Grundrisse über 10 Meter möglich, die tragende Wände in den Einheiten überflüssig machen. Die höheren Kosten dieser Deckenart werden durch den verminderten Gebrauch von Bewehrungsstahl und die schnelle Montage kompensiert. Nicht nur der Vorfertigungsgrad, sondern vor allem die Trennung in Phasen mit wenig Mitbestimmung im Rohbau und viel Mitbestimmung beim Ausbau ermöglichte die Reduzierung der Planungs- und Bauzeit um ca. 12 Monate gegenüber vergleichbaren Projekten.
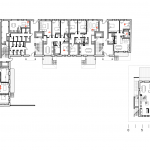
Flexible Grundrisse
Alle Wohnungen zeichnen sich durch freie Grundrissgestaltung aus. Eine flexible Lochfassade ermöglicht vielfältigste Grundrissvarianten ohne Eingriff in die Gesamtstruktur des Hauses. Zudem verfügen alle Einheiten über großzügige privaten Loggien und Balkone.
Ausbaustandards und Selbstausbau
Das Ausbauhaus ermöglicht mit dem Prinzip der Ausbaustandards individuelles Planen und Bauen. Zuerst wird die Gebäudehülle mit allen fachlich notwendigen Schnittstellen erstellt – der Rohbau.
Je nach individuellen Bedürfnissen, Mitteln und Fähigkeiten können die Wohnungen dann als Einraum-Loft („Standard Loft“), als unterteilte Wohnung („Standard: Wohnung“) oder „Übernahme des Rohbaus“ in Eigenleistung, mit anderen Architekten oder Handwerkern („Übernahme Rohbau“) ausgebaut werden. So verfügt der Bewohner über eine hohe gestalterische Entscheidungsfreiheit und erhält zudem die Möglichkeit, den Ausbau seinen finanziellen Möglichkeiten anzupassen.
Grundvorrausetzung ist die wirtschaftliche, vertragliche, rechtliche und technische Trennung des Gesamtprojektes (Rohbau) vom Ausbau der Wohnungen. Die technische Ausrüstung der Wohnungen ist entgegen der Regelausführung niemals wohnungsübergreifend, sondern innerhalb der Wohnungshülle gelöst, so das der individuelle Ausbau noch während der Errichtung des Rohbaus geplant werden kann, ohne das es zu Umplanungen im Gesamtprojekt kommen muss.
Fassade
Die Ausbildung der Fassade, der Fenster sowie des Dachaufbaus folgt einer Regeldetailausbildung, die den gesetzlichen Wärmeschutz- und Brandschutzanforderungen entspricht. Ein übergeordneter gestalterischer Zusammenhang wird durch ein monochromes Farbkonzept erzeugt, das bei unterschiedlichen Lichtverhältnissen die Oberflächen (gestrichene Stahlbetonflächen, Putzflächen, Dachsteine) optisch verbindet oder auch fein voneinander abhebt. Der Sonnenschutz in Form von Netzvorhängen an den Loggien ist individuell regelbar.
Kostengünstiger, individueller und gemeinschaftsbildender Wohnungsbau
Das „Ausbauhaus“-Konzept schafft räumlich großzügige Wohnverhältnisse zu Preisen des sozialen Wohnungsbaus.
Durch die Freiheiten beim Ausbau entstehen hoch individualisierte Nutzungseinheiten, die in hohem Maße durch die Eigentümer beeinflusst werden. Das oft starke Engagement der einzelnen Nutzer ist nicht nur Teil der Aneignung der eigenen Wohnung, sondern auch des Hauses und der Hausgemeinschaft.
Die Hausgemeinschaft betreibt ein energieeffizentes Blockheizkraftwerk zur eigenen Stromerzeugung.
Projekt Standort
Kernhofer Straße 19
10317 Berlin
Deutschland

